Edificio Multifamiliar V-58
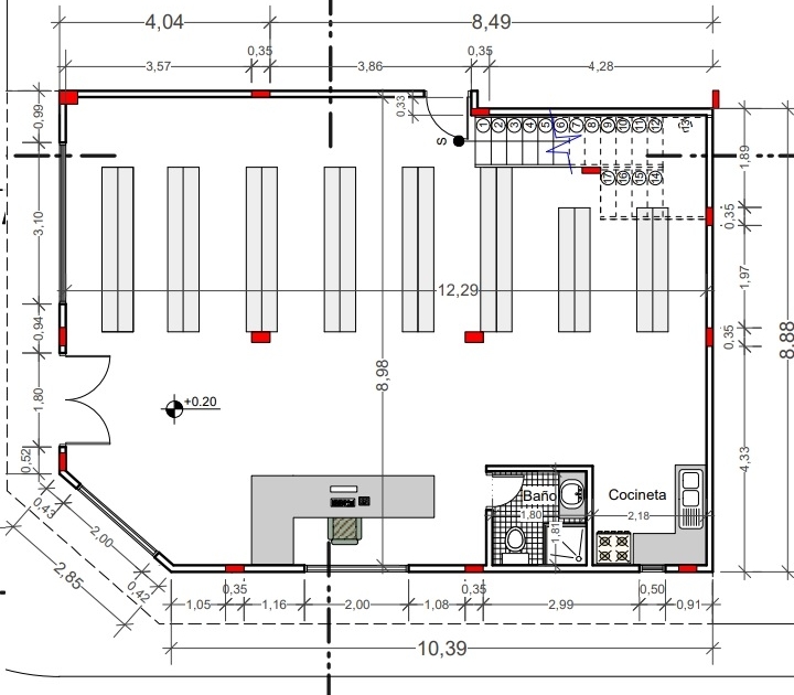
El proyecto se encuentra ubicado sobre la Av. Velarde #58 entre Irala y Rivas, Zona central, con una superficie de terreno de 386,06 m2.
Construccion de Vivienda Unifamiliar "Casa de campo"
Aenean leo ligula, porttitor eu, consequat vitae, eleifend ac, enim. Aliquam lore.




